Mögliche Interaktionen




Exposé Gewerbeimmobilie
Chiffresys_214732
BezeichnungLadenlokal, Büroräume, Startup oder vieles mehr....
AdresseGasthausplatz 5, 46397 Bocholt
Gasthausplatz5_b.jpg
Detail-AnsichtDetail-Ansicht
© OpenStreetMap contributors
Überblick
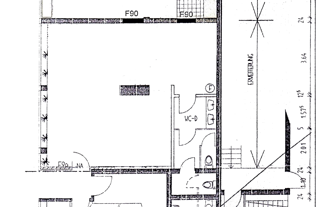
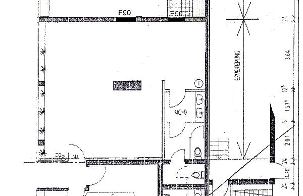
ObjektartEinzelhandel/ Ladenlokal
Nutzfläche63,0 m²
VermarktungsartMiete
Kaltmiete (pro m² monatlich)15,79 €
Verfügbarkeitab sofort
Objektbeschreibung
Auszug aus dem "Konzept Flächenmanagement 2.0 für die Bocholter Innenstadt"

"Die Teillage von Langenbergstr., Gasthausplatz und Wesemannstr.“ steht für Entdecken & Genießen“. Hierbei handelt es sich um einen sehr hochwertigen Gastronomie- und
Einzelhandelsbranchenmix mit außergewöhnlichen und überraschenden Angeboten."
Details und Ausstattung
NutzungsmöglichkeitenSie haben eine Geschäftsidee? Dieses kleine, aber feine, Ladenlokal am Gasthausplatz in Bocholt ermöglicht Ihnen die Umsetzung. Eingebettet zwischen etablierter Gastronomie profitieren Sie zusätzlich von vorhandenen, durch den Wochenmarkt verstärkten, Kundenströmen. Der angrenzende Liebfrauenplatz bietet hinreichend Parkplätze für Ihre Kunden. Auch kurzfristige Laufzeiten möglich, daher ideal für Startups. Vieles ist denkbar, sprechen Sie uns an.
Nutzfläche63,0 m²
Sonstige Fläche20,0 m²
HeizungsartGas zentral
Kaltmiete (gesamt monatlich)995,00 €
Kaltmiete (pro m² monatlich)15,79 €
Nebenkosten (gesamt monatlich)120,00 €
Kaution (einmalig)2.000,00 €
Lage und Verkehrsanbindung
OrtBocholt, Kreis Borken
LageInnenstadtlage 1B
LagebeschreibungIm Herzen Bocholts, direkt am Gasthausplatz

Anbieter
HDB Lensing FamilienGbR
Andreas Stockhausen
Tel: 01575 2029301
info@hausverwaltung-lensing.de
hausverwaltung-lensing.de
Weitere Bilder