Mögliche Interaktionen




Exposé Gewerbeimmobilie
ChiffreBOR - A 0278
BezeichnungRepräsentatives Bürogebäude - inkl. Lager - Top Lage in Borken - zur Miete provisionsfrei
AdresseLandwehr 105, 46325 Borken
A0278_1.jpg
Detail-AnsichtDetail-Ansicht
© OpenStreetMap contributors
Überblick
ObjektartIndustrie mit Büro
Nutzfläche1.272,0 m²
VermarktungsartMiete
Kaltmiete (pro m² monatlich)8,32 €
Verfügbarkeit01.11.2019
Objektbeschreibung
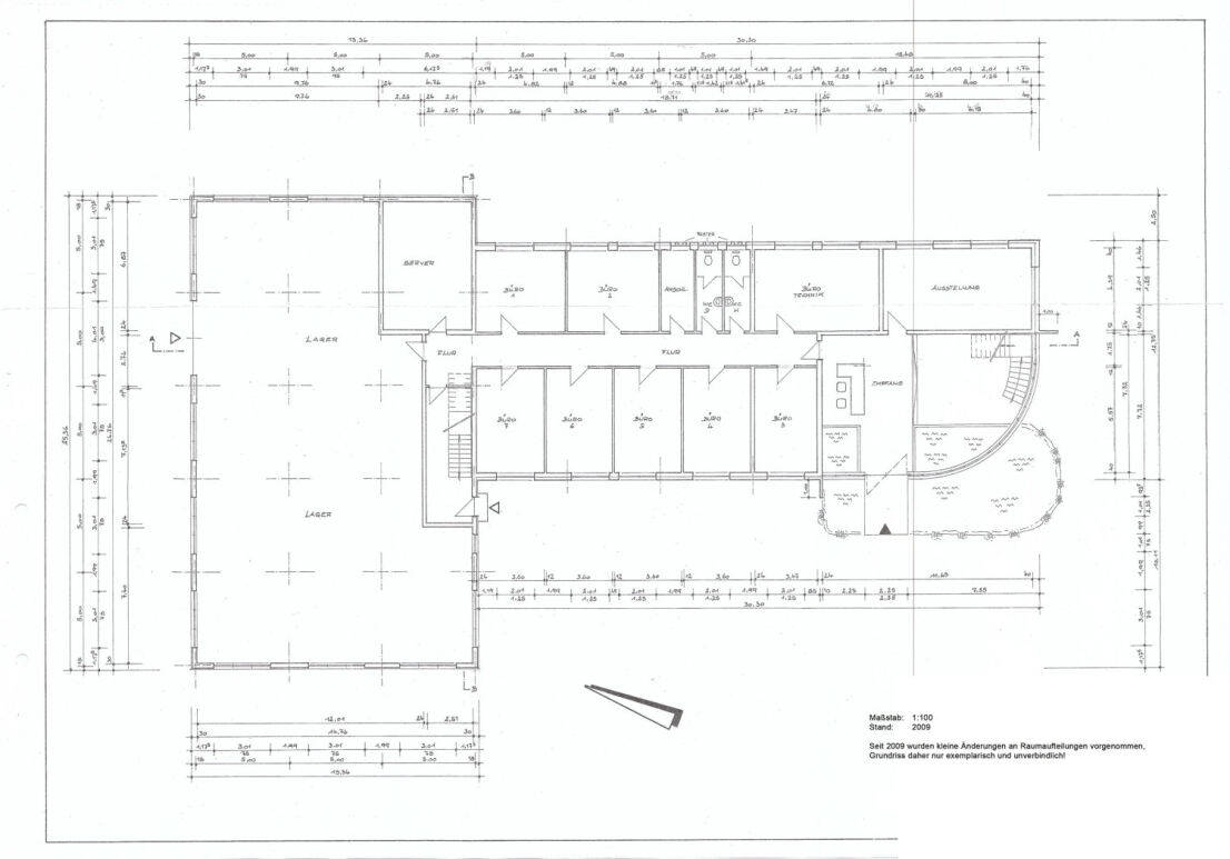
Das Gebäude besteht aus einem Hauptteil, einem Nebenteil, sowie Lagerfläche inkl. Werkstattbereich.

Das Objekt befindet sich im Hendrik-de-Wynen-Park, am alten Kasernengelände der Stadt Borken in erster Reihe und ist von der stark frequentierten Hauptstraße sehr gut erkennbar. Die großzügige Glasfassade bildet einen besonderen Blickfang.

Die Immobilie befindet sich ca. 1 Minute zum nächsten Autobahnzubringer B67n. Die Autobahn A31 ist in ca. 5 Minuten erreicht. Das Stadtzentrum erreicht man mit dem PKW in ebenfalls ca. 5 Minuten. Direkter Nachbar ist ein Hotel, welches sich ideal für die Unterbringung von Gästen eignet. Eine Bäckerei ist in 2 Minuten zu Fuß erreichbar.

Das Grundstück des Gebäudes ist sowohl von der Hauptstraße, als auch von einer Nebenstraße erreichbar. Ca. 70 PkW-Stellplätze bieten ausreichend Stellflächen für Mitarbeiter und Gäste. Der Parkplatz verfügt über eine Ladestation für Elektrofahrzeuge. Das Lager ist per LKW erreichbar.

Den Empfangsbereich des Hauptteils erreicht man über eine kleine Brücke, die über einen schicken Teich führt. Das lichtdurchflutete Foyer verfügt über einen großzügigen Empfangstresen. Der Empfangsbereich ist klimatisiert, die große Glasfassade verfügt über eine elektrische Schattierungsanlage.

Der Hauptteil verfügt über zwei Besprechungsräume, zwei Küchen, einen Serverraum sowie ein Lagerraum mit integriertem Werkstattbereich. Die Küchen sowie die Büro- und Besprechungsräume sind sowohl mit einer manuellen Schattierung, als auch mit Deckenklimageräten ausgestattet.

Das Lager beinhaltet Paletten-Stellplätze, als auch Regalsysteme. Es ist mit Überwachungskameras ausgestattet, verfügt über ein elektr. Rolltor und ist per LKW anfahrbar.

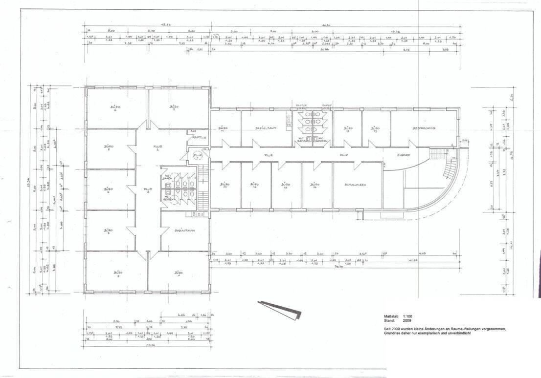
Direkt am Hauptteil der Immobilie ist ein weiterer Gebäudeabschnitt angrenzend. Dieser bietet weitere Büroflächen im OG und ist mit eigener Teeküche und eigenen WC-Anlagen ausgestattet. Dieser Nebenteil ist durch den Hauptteil erreichbar, bietet jedoch zusätzlich einen separaten Eingang. Somit kann dieser Teil eigenständig selbst genutzt und/oder untervermietet werden.
Details und Ausstattung
NutzungsmöglichkeitenBüro- / Lagergebäude
Baujahr2010
Nutzfläche1.272,0 m²
Anzahl Geschosse2
Anzahl Stellplätze70
HeizungsartWärmepumpe
Besondere Ausstattung- Lichtdurchflutetes, repräsentatives Foyer mit großer Empfangstheke, elektr. Schattierungsanlage, klimatisiert
- großzügige Büros, größtenteils mit Parkettboden, klimatisiert, inkl. Schattierungsanlage
- Lagerfläche mit elektr. Rolltor, per LKW erreichbar, alarm- und kameragesichert
- zwei große und hochwertig ausgestattete Küchen im Hauptgebäude
- Nebenteil mit eigenem Eingang, WC-Anlage und Teeküche, daher auch bei Bedarf zur Untervermietung geeignet.
- VDSL und Glasfaseranschlüsse
- PV-Anlage
- großer Serverraum mit Kabelboden und redundanter Klimaanlage
- Großzügige Parkmöglichkeiten mit ca. 70 Stellplätzen
- Ladestation für Elektrofahrzeuge
- Fahnenmasten zur Außenwerbung
- Gebäude alarmgesichert
- Automatisches Schließsystem, transpondergesteuert
Kaltmiete (gesamt monatlich)10.589,00 €
Kaltmiete (pro m² monatlich)8,32 €
Lage und Verkehrsanbindung
OrtBorken, Kreis Borken
LageGewerbegebiet
Lagebeschreibung- Lage direkt an stark frequentierter Hauptstraße
- ca. 1 Fahrminute zur B67n
- ca. 5 Fahrminuten zur nächsten Autobahn A31
- ca. 5 Fahrminuten zum Bahnhof / Stadtmitte
- Hotel direkt nebenan
- Bäckerei ca. 2 Minuten zu Fuß

Anbieter
Netgo GmbH
Christoph Bödder
Landwehr 105
46325 Borken
Tel: 02861 / 80 84 7 - 185
c.boedder@netgo.de
Weitere Bilder