Mögliche Interaktionen




Exposé Gewerbeimmobilie
Chiffresys_58490
BezeichnungSie haben das Erfolgsrezept für Ihr Unternehmen - wir die passenden Räume
AdresseHamminkelner Straße 1, 46395 Bocholt
170522_Hofgarten-Hammersen_01.jpg
Detail-AnsichtDetail-Ansicht
© OpenStreetMap contributors
Überblick
ObjektartBüro und Praxis
Nutzfläche208,0 m²
VermarktungsartMiete
Kaltmiete (pro m² monatlich)8,50 €
Verfügbarkeitnach Absprache
Objektbeschreibung
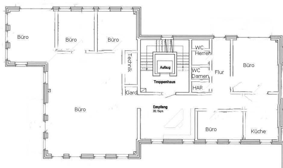
Das attraktive Hammersenviertel bietet viel Potential für Neugründer, aber auch für alteingesessene Firmen. Der praktische Grundriss ermöglicht eine optimale Nutzung. Jede Büroeinheit verfügt über große Fenster und einen Boden in Holzoptik.
Für Ihre Kunden stehen Außenstellplätze zur Verfügung. Überzeugen Sie sich selbst und vereinbaren einen Besichtigungstermin! An den Mietvertrag gekoppelt sind fünf Stellplätze in der Tiefgarage (je mtl. 40,00 € NKM + 15,00 € Nebenkosten) und ein Kellerraum (95,00 € NKM zzgl. 15,00 € Nebenkosten). Verbrauchs-Energieausweis liegt vor: Ausstellungsdatum: 05.03.2019 - gültig bis 04.03.2029, Endenergieverbrauch Wärme: 19,90 kWh/(m²*a), Endenergieverbrauch Strom: 151,50 kWh/(m²·a), Gas Zentralheizung
Details und Ausstattung
NutzungsmöglichkeitenBüro, Kanzlei, Praxis
Baujahr2009
Bürofläche208,0 m²
Nutzfläche208,0 m²
Anzahl Geschosse4
Anzahl Stellplätze5 Tiefgaragenstellplätze
Personenaufzugvorhanden
HeizungsartZentralheizung, Fernwärme
Heizungsart (engl.)central heating, district heating
Besondere Ausstattung- Personenaufzug in allen Etagen
- barrierearmer Zugang
- WC Anlage
- Teeküche
- 5 Tiefgaragenstellplätze
- Kellerraum
Kaltmiete (gesamt monatlich)1.768,00 €
Kaltmiete (pro m² monatlich)8,50 €
Nebenkosten (gesamt monatlich)280,00 €
Kaution (einmalig)3 Nettokaltmieten
Kommentar zum PreisMietpreis auf Anfrage
Preis verhandelbarJa
Lageplan oder Grundriss
Lage und Verkehrsanbindung
OrtBocholt, Kreis Borken
StadtteilHammersenviertel
LageMischgebiet
LagebeschreibungDurch den hohen Wiedererkennungswert des Hammersenviertels ist Ihnen Aufmerksamkeit garantiert. Die hochfrequentierte Werther Straße führt direkt am Quartier vorbei und sichert durch ihre Anbindung an die B67 eine gute Erreichbarkeit. Gleichzeitig ist durch die zur Einheit gehörenden PKW-Stellplätze eine optimale Parkplatzsituation für Ihre Mitarbeiter gegeben.

Bereichert wird das Hammersenviertel in Bocholt aktuell durch Einrichtungen des Dienstleistungs- und Einzelhandelssektors wie z.B. eine Bäckerei mit Café, einer Eisdiele, einem Friseur, einer Tagespflege und diversen Büroeinheiten.

Bocholt liegt im westlichen Münsterland und ist die größte Stadt im Kreis Borken. Vielseitige Einkaufsmöglichkeiten, sehr gute Schulen, ein breites kulturelles Angebot und die interessante Lebensvielfalt des Grenzgebietes zu den Niederlanden erwarten Sie hier.
Über die B473 ist Bocholt an die A3 angebunden und durch das Stadtgebiet führt die neue B67n, welche die A3 mit der A31 verbindet.
Der öffentliche Personennahverkehr ist breit gefächert.

Anbieter
Immobilien Hüls GmbH
Dirk Hiller
Hamminkelner Str. 22
46395 Bocholt
Tel: 02871 18953 12
Fax: 02871 18953 89
info@immobilien-huels.de
www.immobilien-huels.de
Weitere Bilder