Mögliche Interaktionen




Exposé Gewerbeimmobilie
Chiffre1702
BezeichnungGewerbe- und Wohnkomplex mit Potenzial – ländlich gelegen
AdresseRhedebrügger Straße 51, 46325 Borken
nord.jpg
Detail-AnsichtDetail-Ansicht
© OpenStreetMap contributors
Überblick
ObjektartIndustrie mit Ladenlokal und Büro
Nutzfläche700,0 m²
VermarktungsartKauf
Kaufpreis (gesamt)1.590.000,00 €
Verfügbarkeit31.07.2026
Details und Ausstattung
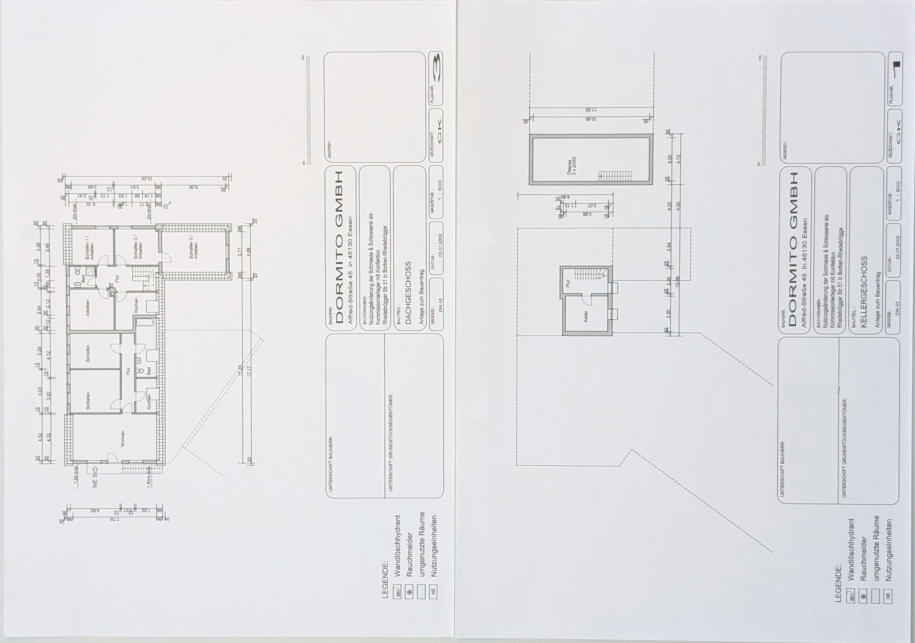
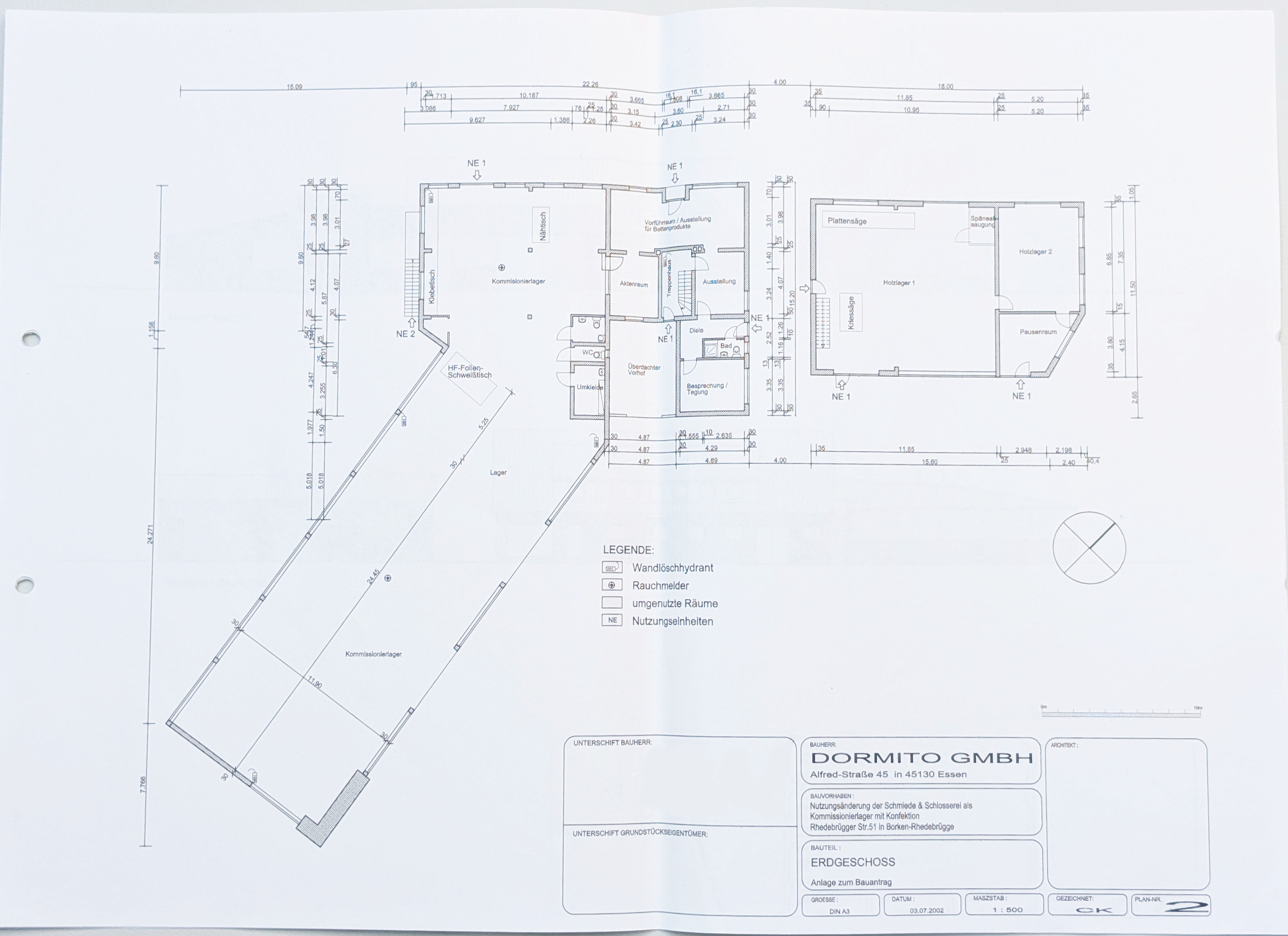
NutzungsmöglichkeitenHallenflächen: Große Halle 500m² und kleine Halle 200m²
Wohnfläche: 260m²
Baujahr1975
Grundstücksfläche3.800,0 m²
Brutto-Grundfläche des Gebäudes980,0 m²
Produktions-/Lagerfläche700,0 m²
Ladenfläche65,0 m²
Nutzfläche700,0 m²
Sonstige Fläche195,0 m²
Anzahl Geschosse2
Anzahl Stellplätze100
HeizungsartPellet
Heizungsart (engl.)Pellet
Kaufpreis (gesamt)1.590.000,00 €
Kaufpreis (pro m²)1.656,00 €
Kommentar zum PreisInklusive 2 Wohnungen
LKW BefahrbarkeitJa
Lageplan oder Grundriss
Lage und Verkehrsanbindung
OrtBorken, Kreis Borken
StadtteilRhedebrügge
LageMischgebiet
LagebeschreibungZum Verkauf steht eine vielseitig nutzbare Gewerbeimmobilie mit angeschlossenen Wohnflächen in ruhiger Lage auf dem Land (Rhedebrügger Str. 51, 46325 Borken).

Das Anwesen bietet ca. 700 m² Hallenflächen sowie drei vermietete Wohnungen auf einem großzügigen Grundstück von rund 3.800 m² mit vielen befestigten Hofflächen und Parkmöglichkeiten.

Objektdetails:

Hallenflächen: Große Halle 500m² und kleine Halle 200m²

Wohnfläche: 260m² ohne Schrägen, 2 Wohnungen, renoviert 2018 (vermietet) plus 1 Wohnung/Ausstellungfläche/Einzelhandel im EG, renoviert (vermietet)

Grundstück: ca. 3.800 m²

Große Halle: ca. 500 m², zwei Rolltore, rundum Verglasung, renoviert 2010 + 2024, Dach neu 2024

Kleine Halle: ca. 200 m², zwei Flügeltore, rundum Verglasung, unterkellert

Baujahr Hallen: 1975

Baujahr Wohnhaus: 1930

Heizung: Pellet-Heizung neu 2024

Das Objekt wurde zuletzt als Möbelproduktion genutzt und eignet sich ideal für Produktion, Lager oder Handwerksbetrieb mit zusätzlicher Wohn- oder Vermietungsoption. Durch die Größe des Grundstücks besteht Erweiterungsmöglichkeit für zusätzliche Nutzungskonzepte.
Preis: 1.590.000 €
Kontakt: Bei Interesse an einer Besichtigung oder weiteren Informationen freue ich mich über Ihre Nachricht.

Anbieter
Ludger Hambrock
Ludger Hambrock
Rhedebrügger Str. 80
46325 Borken
Tel: 02872-95599990
mull@dormito.de
Weitere Bilder