Mögliche Interaktionen




Exposé Gewerbeimmobilie
Chiffresys_215537
BezeichnungNeubau: Büroflächen in Rhede zu vermieten
AdresseJohann-Strauß-Straße 3, 46414 Rhede
Straßenansicht Baugrundstück.jpg
Detail-AnsichtDetail-Ansicht
© OpenStreetMap contributors
Überblick
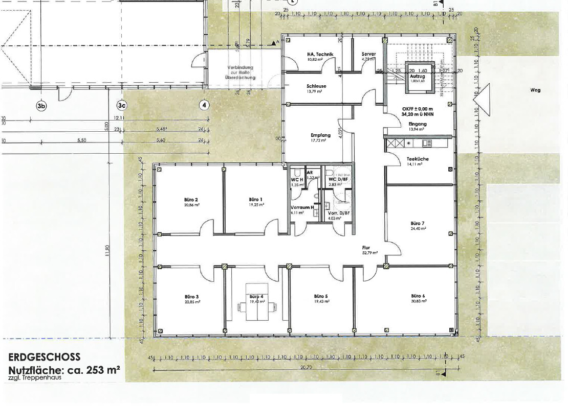
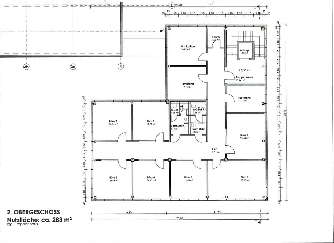
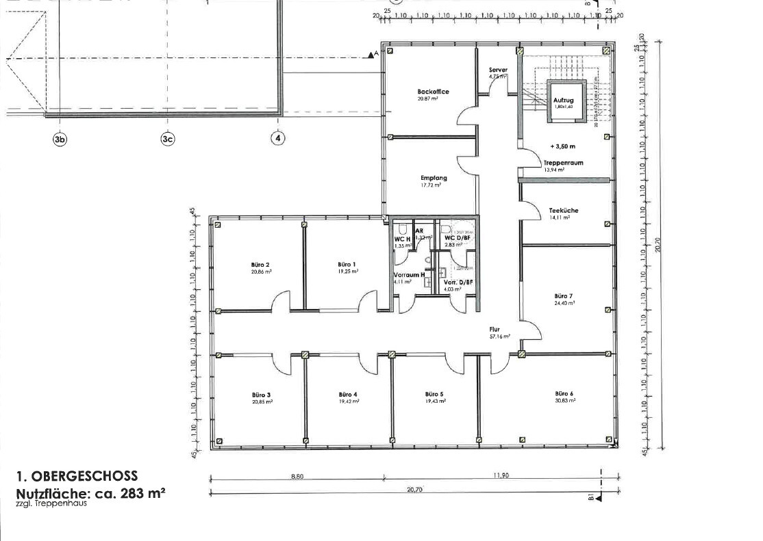
ObjektartBüro und Praxis
Nutzfläche283,0 m²
VermarktungsartMiete
Kaltmiete (pro m² monatlich)8,00 €
Verfügbarkeit2026
Details und Ausstattung
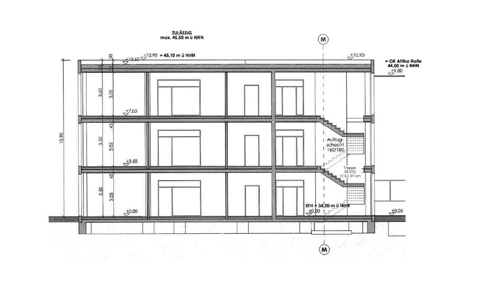
Baujahr2026
Bürofläche283,0 m²
Nutzfläche283,0 m²
Sonstige Fläche90,0 m²
Besondere Ausstattung- Fahrstuhl
- Klimaanlage
- moderne technische Ausstattung
- ausreichend PKW-Stellplätze vorhanden
Kaltmiete (gesamt monatlich)2.264,00 €
Kaltmiete (pro m² monatlich)8,00 €
Lage und Verkehrsanbindung
OrtRhede, Kreis Borken
LageGewerbegebiet
LagebeschreibungDie attraktive Lage der Bürofläche in Rhede besticht durch ihre hervorragende Infrastruktur und
strategische Position im westlichen Münsterland. Rhede ist bekannt für sein dynamisches
Wirtschaftsumfeld und bietet eine ideale Basis für Unternehmen aller Branchen. Die Immobilie befindet sich in einem etablierten Gewerbegebiet, das sich durch eine ausgezeichnete Erreichbarkeit sowohl für Kunden als auch Mitarbeiter auszeichnet.

Die Anbindung an das regionale und überregionale Verkehrsnetz ist optimal – die nahegelegenen Bundesstraßen und Autobahnen ermöglichen eine schnelle Verbindung zu den umliegenden Städten sowie zu wichtigen wirtschaftlichen Zentren wie dem Ruhrgebiet oder den Niederlanden. Der öffentliche Nahverkehr ist ebenfalls gut ausgebaut, sodass Pendler bequem die Büroräume erreichen können.

Diese Lage vereint eine exzellente Kombination aus zugänglicher Infrastruktur und einem einladenden Umfeld, das sowohl Arbeitgebern als auch Arbeitnehmern zahlreiche Vorteile bietet.

Anbieter
Hohe Mark Immobilien GmbH
Christian Borgert
Hauptstraße 13
48734 Reken
Tel: +49 2864 887801
c.borgert@vb-hm-immo.de
Weitere Bilder