Mögliche Interaktionen




Exposé Gewerbeimmobilie
ChiffreRMC 1
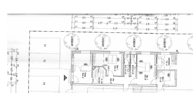
BezeichnungBüroflächen in Gronau Epe Süd-Gewerbegebiet
AdresseAm Königsweg 1F, 48599 Gronau (Westf.)
Screenshot 2025-03-15 135028.png
Detail-AnsichtDetail-Ansicht
© OpenStreetMap contributors
Überblick
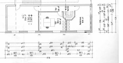
ObjektartBüro und Praxis
Nutzfläche466,81 m²
VermarktungsartMiete
Kaltmiete (pro m² monatlich)7,00 €
Verfügbarkeitsofort
Objektbeschreibung
Es können auch nur Teile der Räume oder des Objektes genutzt werden. Die Lagerräume sind jedoch nicht in der Vermietung enthalten und werden nicht angeboten.
Details und Ausstattung
NutzungsmöglichkeitenWir bieten reine Büroflächen zur Vermietung an.
Baujahr2001
Grundstücksfläche752,0 m²
Brutto-Grundfläche des Gebäudes390,41 m²
Bürofläche154,55 m²
Produktions-/Lagerfläche312,26 m²
Nutzfläche466,81 m²
Anzahl Geschosse2
HeizungsartGasheizung Brennwert
Besondere AusstattungKüche ist vorhanden, ist nachträglich eingebaut.
Kaltmiete (gesamt monatlich)1.081,82 €
Kaltmiete (pro m² monatlich)7,00 €
Nebenkosten (gesamt monatlich)100,00 €
Kaution (einmalig)2.163,64 €
zwei Monatsmieten kalt.
Preis verhandelbarJa
Max. Gebäudehöhe7,16 m
Max. Raumhöhe2,8 m
Lage und Verkehrsanbindung
OrtGronau (Westf.), Kreis Borken
StadtteilGronau Epe
LageGewerbegebiet
LagebeschreibungObjekt Liegt in Epe Süd, mit schneller Anbindung an die A31 Abfahrt Heek

Entfernung zu:
Autobahn7,5 km
Bahn2,4 km
Flughafen43 km
Anbieter
Robert Meyer Catering GmbH
Robert Meyer
Am Königsweg 7
48599 Gronau (Westfalen)
Tel: 02565 9190117
R.MEYER@GRILLCATERING.DE
www.grillcatering.de
Weitere Bilder