Mögliche Interaktionen




Exposé Gewerbeimmobilie
Chiffresys_215168
BezeichnungLadenlokal/Büro
AdresseOststraße 7, 59269 Beckum
Foto Front (1).jpg
Detail-AnsichtDetail-Ansicht
© OpenStreetMap contributors
Überblick
ObjektartBüro und Praxis
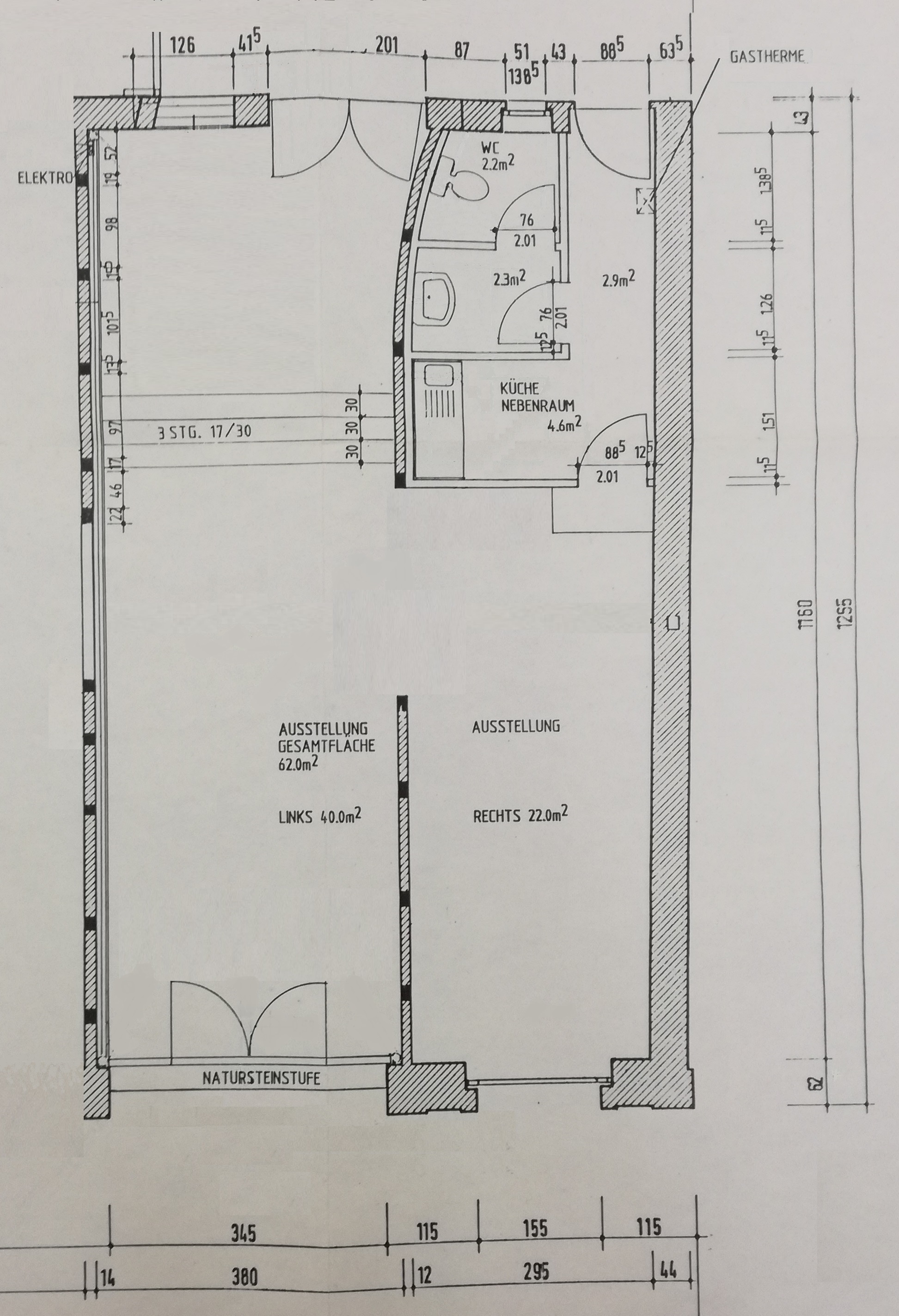
Nutzfläche75,0 m²
VermarktungsartMiete
Verfügbarkeitab März 2025
Objektbeschreibung
Die Fläche befindet sich in einem denkmalgeschützen Objekt im Erdgeschoss. Das Objekt selber ist top gepflegt und auch die Fläche im Erdgeschoss wäre ohne großen Aufwand einzugsbereit. Aufgrund der Lage in der verkehrsberuhigten Zone besteht die Möglichkeit, in unmittelbarer Nähe zu parken und hat zusätzlich die Nähe zur Fußgängerzone. In unmittelbarer Nähre gibt es verschiedene Praxen, Einzelhandel und Dienstleister. Im Bereich der Oststraße gibt es eine Immobilien- und Standortgemeinschaft, die den Straßenzug mit Aktion und Werbeaktionen zusätzlich bewirbt.
Details und Ausstattung
NutzungsmöglichkeitenAufgrund der Lage und des Zuschnittes ergeben sich eine Vielzahl von Nutzungsmöglichkeiten. Zum Beispiel im Bereich Dienstleistungen, Praxis oder natürlich auch Einzelhandel.
Nutzfläche75,0 m²
Anzahl GeschosseErdgeschoss
Anzahl Stellplätzemindestens 1
HeizungsartGasheizung
Besondere AusstattungGroße Fensterfront, Zugangsmöglichkeit sowohl von vorn als auch vom hinteren Bereich und eine zur Fläche passende Fachwerkstruktur.
Kommentar zum PreisDie Miete erfolgt in Absprache und nach Nutzung.
Preis verhandelbarJa
Lageplan oder Grundriss
Lage und Verkehrsanbindung
OrtBeckum, Kreis Warendorf
StadtteilBeckum
LageInnenstadtlage
LagebeschreibungIn einer verkehrsberuhigten Zone, in unmittelbarer Nähe zur Fußgängerzone in der Innenstadt von Beckum

Entfernung zu:
Autobahn4 km
Bahn7 km
ÖPNV0,2 km
Anbieter
Herr Schulze Balhorn
achim@schulzebalhorn.de
Weitere Bilder