Mögliche Interaktionen




Exposé Gewerbeimmobilie
Chiffresys_214485
BezeichnungBüroflächen in der Bocholter Innenstadt
AdresseMünsterstraße 31, 46397 Bocholt
20240515-e-Teaser_Münsterstraße 31_Büro_Lageansicht..jpg
Detail-AnsichtDetail-Ansicht
© OpenStreetMap contributors
Überblick
ObjektartBüro und Praxis
Nutzfläche200,0 m²
Verfügbarkeit01.09.2024
Objektbeschreibung
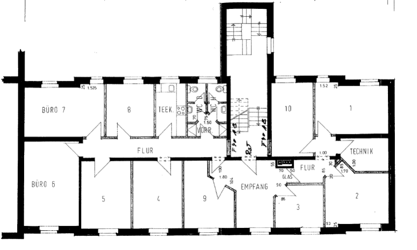
Fläche Obergeschoss: ca. 200 m²
Anzahl Büroräume: 10
Empfangsbereich: 1
WC: 2
Teeküche: 1
Technik: 1
PKW-Stellplätze und Fahrradstellplätze im Innenhof

Die Büroflächen Münsterstraße 31 befinden sich im ersten Obergeschoss des Objektes, welches man durch das im Innenhof gelegene Treppenhaus erreicht. PKW- und Fahrradstellplätze befinden sich in ausreichender Anzahl im Innenhof. Die insgesamt ca. 200 m² große Bürofläche verfügt über 10 abgetrennte Büroräume von ca. 8 bis 20 m². Die Bürofläche verfügt über einen Empfangsbereich, WC- Anlagen, einen separaten Technikraum sowie eine abgetrennte Teeküche.
Details und Ausstattung
NutzungsmöglichkeitenBürofläche, Praxis
Baujahr1934
Nutzfläche200,0 m²
Anzahl Geschosse1
Kaution (einmalig)3 MM
Kommentar zum PreisMietpreis wird bei Interessenbekundung verhandelt
Sonstige AngabenFLÄCHEN:
Ca. 200 m² Gesamtfläche aufgeteilt in:

Büro 1: ca. 16 m²
Büro 2: ca. 15 m²
Büro 3: ca. 8 m²
Büro 4: ca. 15 m²
Büro 5: ca. 20 m²
Büro 6: ca. 18 m²
Büro 7: ca. 18 m²
Büro 8: ca. 11 m²
Büro 9: ca. 12 m²
Büro 10: ca. 14 m²

Empfangsbereich: ca. 15 m²
WC Damen: ca. 3 m²
WC Herren: ca. 3 m²
Teeküche: ca. 7 m²

PKW- und Fahrradstellplätze im Innenhof
Lage und Verkehrsanbindung
OrtBocholt, Kreis Borken
StadtteilInnenstadt
LagebeschreibungDas Objekt Münsterstraße 31 befindet sich in zentraler Lage östlich des sogenannten Bocholter Rings (Ostwall/Theodor-Heuss-Ring). Die Münsterstraße als zentrale Verkehrsachse stadteinwärts bzw. auswärts führend, sowie als beliebte Geschäftsstraße, bietet eine hervorragende Verkehrsanbindung und Adresse. Bis in die Bocholter Innenstadt sind es nur wenige Gehminuten zu Fuß. Dort befinden sich die Bocholter Fußgängerzone mit dem historischen Rathaus und dem Wochenmarkt, Gastronomieangebote sowie ein breites Angebot an Geschäften des täglichen Bedarfs.

Anbieter
_bocholt_Photo_company-logo_j3e6bXcevHqrHzGEbWTJmUtiCrQyWEP4.jpgWirtschaftsförderungs- und Stadtmarketing Gesellschaft Bocholt mbH & Co. KG
Lennart Bengfort
Tel: +49 2871/ 29 49 33 - 20
bengfort@bocholt-wirtschaftsfoerderung.de
Weitere Bilder