Mögliche Interaktionen




Exposé Gewerbeimmobilie
Chiffresys_212683
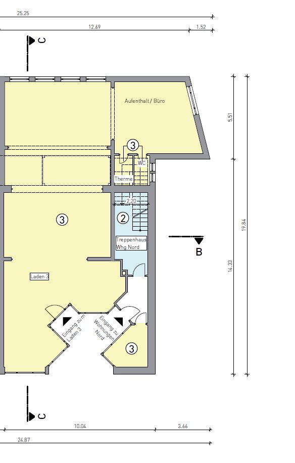
BezeichnungLadenlokal/Geschäftsfläche in zentraler Lage
AdresseNordstraße 41, 59269 Beckum
IMG_20220912_090608.jpg
Detail-AnsichtDetail-Ansicht
© OpenStreetMap contributors
Überblick
ObjektartEinzelhandel/ Ladenlokal
Nutzfläche165,0 m²
VermarktungsartMiete
Verfügbarkeit01.01.2023
Objektbeschreibung
Die attraktive Geschäftsfläche mit großer Schaufensterfront befindet sich auf der Fußgängerzone und hat trotzdem Parkmöglichkeiten in unmittelbarer Nähe. Im Umfeld gibt es attraktive Modegeschäfte, Apotheken, Gastronomie sowie verschiedene Ärzte.
Details und Ausstattung
NutzungsmöglichkeitenAufgrund der großen Schaufensterfront, dem barrierefreien Eingang und dem überdachten, beleuchteten Eingangsbereich bieten sich vielfältige Nutzungsmöglichkeiten.
Nutzfläche165,0 m²
Anzahl Stellplätze2
Besondere AusstattungDie Fläche ist frei aufteilbar. WC ist vorhanden. Der Eingangsbereich ist barrierefrei, überdacht und beleuchtet. Öffentliche Parkplätze sind fußläufig etwa 75 Meter entfernt.
Kommentar zum PreisDie Mietpreisabstimmung erfolgt mit den Eigentümern.
Lage und Verkehrsanbindung
OrtBeckum, Kreis Warendorf
LageInnenstadtlage
LagebeschreibungDirekt an der Hauptfußgängerzone befindet sich dieses Ladenlokal.

Entfernung zu:
Autobahn4 km
Bahn6 km
ÖPNV2 km
Anbieter
L. und A. Trampe
Tel: 0179 9105608 oder 0170 5790675
Weitere Bilder