Gewerbeflächenbörse Münsterland
basierend auf blis-online.eu
DE
EN
Mögliche Interaktionen
PDF Deutsch
PDF Englisch
Zurück zur Karte
Exposé Gewerbeimmobilie
Chiffre
5317
Bezeichnung
Geschäfts-/Büroräume - direkt am Gasthausplatz - vielseitig nutzbar - provisionsfrei
Adresse
Langenbergstraße 14, 46397 Bocholt
©
OpenStreetMap
contributors
Überblick
Objektart
Einzelhandel/ Ladenlokal
Nutzfläche
82,0 m²
Vermarktungsart
Miete
Kaltmiete (pro m² monatlich)
15,49 €
Objektbeschreibung
Laden/Praxis/Büroräume, Bocholter Innenstadt, zur Miete, EG, 82m²
Details und Ausstattung
Nutzungsmöglichkeiten
Die breite Schaufensterfront bietet ausreichend Platz für ihre Dekorationsideen und lädt die Laufkundschaft zum Verweilen ein.
Im hinteren Bereich befindet sich ein kleines Büro, sowie Toilette und Kochgelegenheit.
Die zugehörigen 25 Quadratmeter Kellerfläche bieten großzügige Lagermöglichkeiten. Anlieferung über den Hinterhof möglich.
Ladenfläche
82,0 m²
Nutzfläche
82,0 m²
Sonstige Fläche
25,0 m²
Kaltmiete (gesamt monatlich)
1.270,00 €
Kaltmiete (pro m² monatlich)
15,49 €
Nebenkosten (gesamt monatlich)
110,00 €
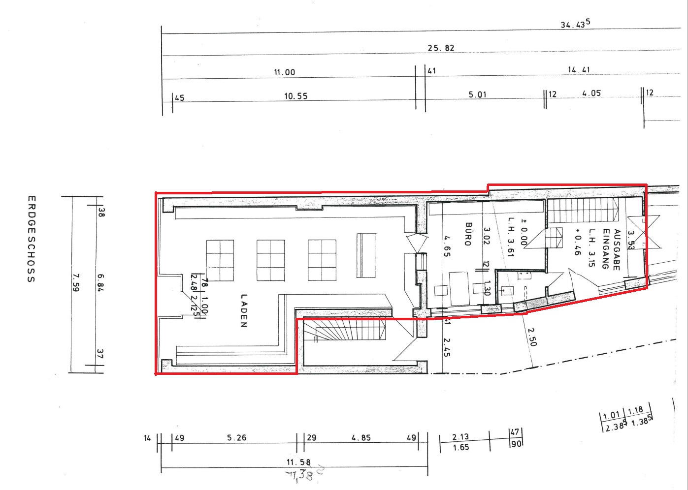
Lageplan oder Grundriss
LBS14_EG.jpg
Lage und Verkehrsanbindung
Ort
Bocholt, Kreis Borken
Lage
Innenstadtlage
Lagebeschreibung
Im Herzen Bocholts zwischen Liebfrauen- und Gasthausplatz gelegen, profitiert dieses Ladenlokal nicht zuletzt von den Markttagen und seinen zahlreichen Kunden.
Mit besten Parkmöglichkeiten in unmittelbarer Nähe bieten Sie Ihren Kunden kurze Wege.
Anbieter
Andreas Stockhausen
Tel: +49 1575 2029301
info@hausverwaltung-lensing.de
Weitere Bilder